百姓厂房网   发布房源 求租求购
百姓厂房网   >      >   零首付!四层独栋厂房 顺德国有50年3000方起出售
(编号:269932) 零首付!四层独栋厂房 顺德国有50年3000方起出售
发布时间: 2023-12-14 10:02:04 房源状态: 出租中
  • 扫描该【房源】二维码
    查看该【房东】联系方式
  • 浏览
  • 浏览数:800
    收藏数:0
所在区域: 佛山 / 东风工业区港口西路与东业路交汇处 建筑结构:
厂房面积: 3000 车辆出入:
出租价格: 5800 元/平米/天 配电容量: KVA
办公面积: 可否分租:
空地面积: 是否独院:
所在楼层: 层      层高: 有无货梯:
具体位置: 东风工业区港口西路与东业路交汇处
详细描述
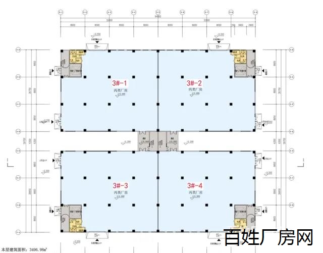
[地理位置】佛山市顺德区勒流街道东风工业区港口路以???西发展路3号n[土地性质】工业用地全新,产权分割,一户一证n[商业配套】距离锦力新都汇1KM,距离地铁16号线(规划中)1KMn[类型】四层独栋双拼户型,10米跨度,8米*10米柱距n【交通】港口西路 龙江大道 n【面积】面积分布:1000㎡-14400㎡n[层高】1F 7.9米,2F 6米,3F/4F 4.5米n【承重】1F(无地下室,地面承重),2F 1T/㎡ ,3F 0.8T/㎡,4F 0.6T/㎡n[物业】自有专业物业管理,园区配有餐厅,公共咖啡厅 等公共服务设施n[行业】:以电器,五金制造,智能制造,电子等产业n{可定制】定制厂房可按照客户需求n【交通优势】:项目位于佛山市顺德区勒流街道,地处正在顺德规划的勒流新城的核心区位
【厂房图片】
【地图位置】
【本站点信息均来自转载网络或用户自行上传,其房源信息中陈述文字和内容未经本站证实,对其中全部或者部分内容、文字的真实性、完整性、及时性本站不作任何保证或承诺,信息仅作用户参考,并请自行核实相关内容,如有涉及信息侵犯,请联系我们立即删除。】
猜你查找
顺德四层独栋厂房出售 M2用地全新国有50年 2600方起售
零首付!四层独栋厂房 顺德国有50年3000方起出售
© 2015-2025 百姓厂房网   -   浙ICP备18033986号-1    浙公网安备 33011002015824号    服务热线:13093751618     服务时间:8:30 - 21:30